Quadrilocale in vendita

Canossa, Giaretta Ienza - Massalica
€ 139.000
4 locali 4 locali
105 Mq 105 Mq
1 bagno 1 bagno

Quadrilocale in vendita

Canossa, Giaretta Ienza - Massalica

Descrizione annuncio

CIANO D'ENZA: STUDIO PEGASO SRL PROPONE IN ESCLUSIVA UNA OPPORTUNITA' UNICA ED IMPERDIBILE, IMMERSO NEL VERDE DELLE COLLINE CON UNA VISTA PANORAMICA MOZZAFIATO SUL FIUME ENZA CIRCONDATO DALLE COLLINE, APPARTAMENTO CON INGRESSO INDIPENDENTE DISPOSTO SU DUE LIVELLI IDEALE PER VILLEGGIATURA ESTIVO/INVERNALE O COME SOLUZIONE PER ACCOGLIENZA TURISTICA.

L'immobile e' in un contesto speciale tra dolci colline verdi che sembrano dipinte a mano con il fruscio del fiume che scorre poco distante, rendono questo luogo magico, la casa è composta solo da 3 appartamenti.

Posto al primo piano con ingresso indipendente si accede tramite un grazioso portico, un rifugio perfetto dove il tempo rallenta ideale per sorseggiarsi un caffe al mattino o lasciarsi cullare dai suoni della natura al tramonto.

Entrando nell'appartamento ci accoglie un ampio soggiorno inondato di luce, dove una grande portafinestra conduce ad un balcone privato, da qui lo sguardo si perde in una vista panoramica mozzafiato, fatta di colline cielo e silenzi che parlano al cuore.

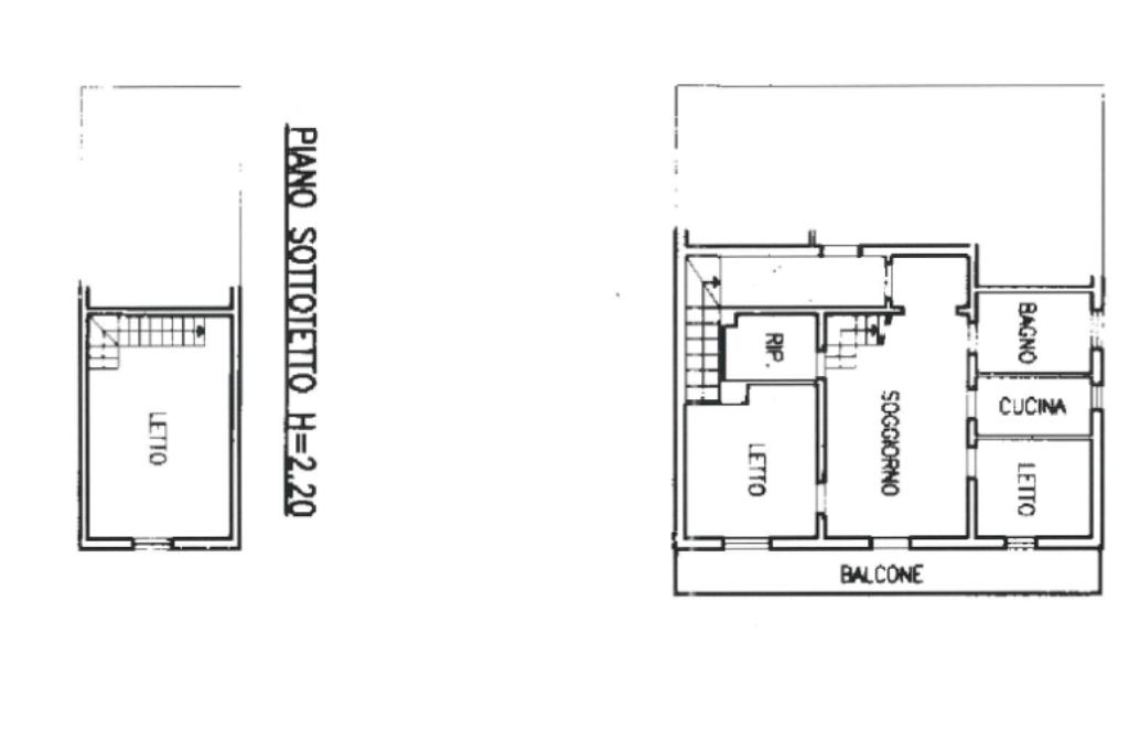
sempre dal soggiorno si accede al resto degli ambienti sul piano dove troviamo un pratico cucinotto, un bagno, un ampio ripostiglio e due camere da letto trequarti dalle quali anche da esse si accede al balcone, come se ogni stanza volesse regalare il suo scorcio di meraviglia, salendo una scala interna quasi come in una torre di un racconto, si raggiunge la camera matrimoniale mansardata: un nido romantico con una finestra affacciata sulla stessa incantevole vista.

Tutte le utenze sono autonome e l'mpianto di riscaldamento e' stato recentemente riqualificato sostituendo la caldaia e installandone una nuova a condensazione e sostituendo tutti i termosifoni, rendendo l'ambiente moderno e confortevole in ogni stagione.

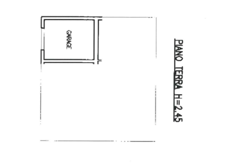
A piano terra abbiamo una pratico garage di pertinenza dell'appartamente ed un ampio giardino privato

Non lasciarti sfuggire questa opportunita': vieni a scoprirla di persona, lascia che sia questo luogo a raccontarti il resto.

Mostra tutto

Nelle vicinanze

Ristoranti Ristoranti
Agriturismo Il Filare
2,6 Km
Mostra tutto

Caratteristiche

Rif.:
61200077
Piano:
2 di 2 (Piano basso)
Box:
1
Posti auto:
1
Balconi:
1
Terrazzi:
1
Mostra tutto
Prezzo Prezzo
€ 139.000
Rata mutuo Rata mutuo
€ 663 / mese
Spese annue Spese annue
€ 0
Proponi il tuo prezzoProponi il tuo prezzo

Classe Energetica

Questo immobile è esente da classe energetica
Anno di costruzione:
1970
Riscaldamento:
Autonomo
Tipo impianto:
A radiatori
Tipo alimentazione:
Metano

Ti interessa visionare l'immobile?

Fissa un appuntamento  Fissa un appuntamento

Richiedi informazioni

Clicca su Leggi per aprire l'informativa
* Questi campi sono obbligatori

Calcola il tuo mutuo

Semplice e senza impegno
Anticipo

( % )
Mutuo

( % )

pochi semplici passi

inserisci i tuoi dati
Questionario completato
Grazie per aver richiesto un appuntamento senza impegno con un nostro Consulente del Credito e Assicurativo.

Hai inserito correttamente tutti i dati necessari e a breve riceverai una e-mail con un link da convalidare per inviare i tuoi dati.
Affiliato
Studio Pegaso Srl
Via Martiri della Bettola, 66/b 42123 Reggio Nell'Emilia (RE)

Il nostro staff


  • Benson Darko
    Affiliato

  • Fawzi Amin Fawzi Amin
    Collaboratore

  • Rossana Pellegrino
    Coordinatrice

  • Franco Vasapollo
    Collaboratore
Via Martiri della Bettola, 66/b 42123 Reggio Nell'Emilia (RE)
Zona: San pellegrino-Canalina-Baragalla-Villa Verde-Reggio sud
Mostra su mappa
Orari: dal lunedì al venerdì dalle 09.00 alle 13.00 e dalle 15.00 alle 20.00. Sabato dalle 09.00 alle 13.00
Affiliato
Studio Pegaso Srl
Via Martiri della Bettola, 66/b 42123 Reggio Nell'Emilia (RE)

2026 Tecnocasa Franchising S.p.A. - P. IVA 08365160152 - Via Monte Bianco 60/A 20089 Rozzano (MI). Ogni agenzia ha un proprio titolare ed è autonoma. Privacy policy | Policy utilizzo | Cookie policy