Quadrilocale in vendita

Reggio Nell'Emilia, Via Giambattista Vico - Cella
€ 199.000
4 locali 4 locali
120 Mq 120 Mq
2 bagni 2 bagni

Quadrilocale in vendita

Reggio Nell'Emilia, Via Giambattista Vico - Cella

Descrizione annuncio

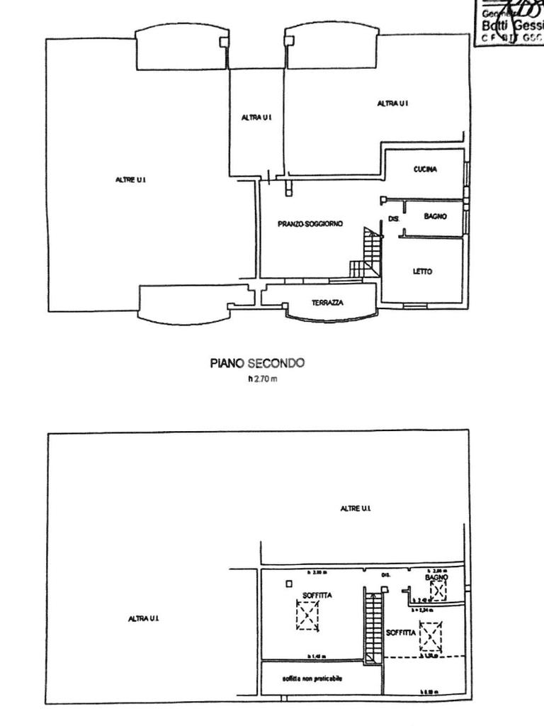
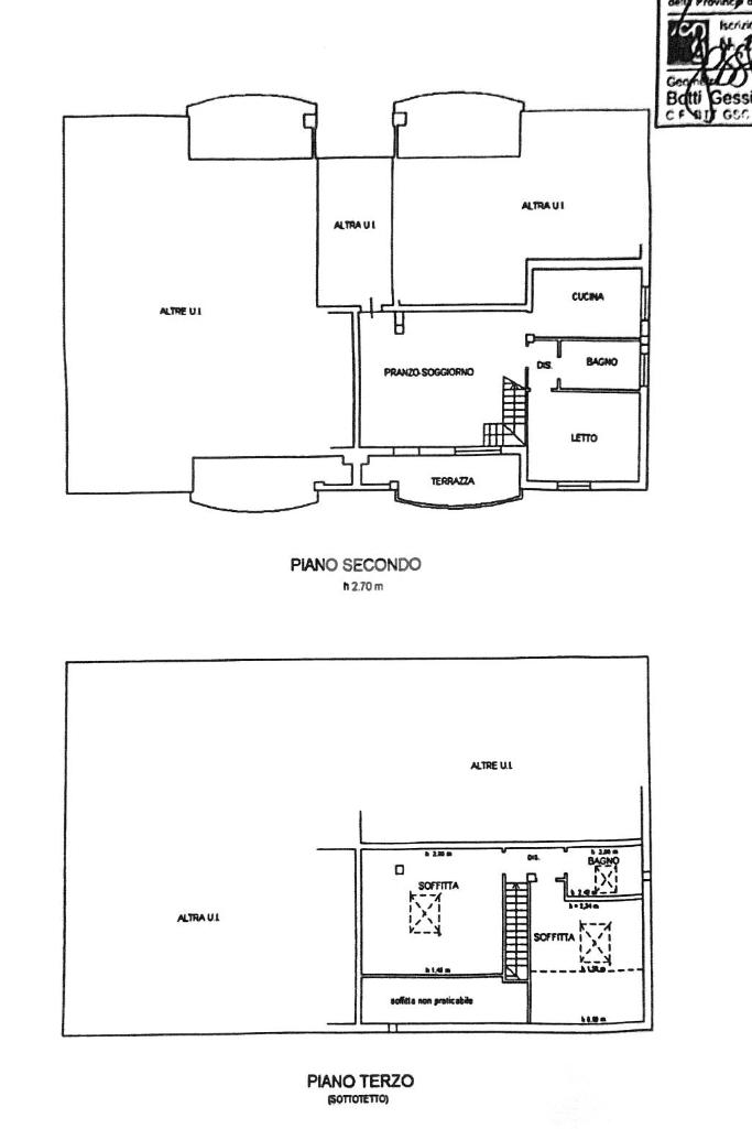
CELLA: Studio Pegaso propone in esclusiva una magnifica maisonette al secondo e ultimo piano, ubicata in una palazzina costruita nel 2004, è caratterizzata da ambienti ampi, luminosi e funzionali.

L’ingresso si apre su un grande soggiorno luminoso con accesso diretto a un terrazzino sfruttabile con vista panoramica, ideale per pranzi all’aperto o per godersi momenti di tranquillità all’aria aperta. Sullo stesso livello troviamo anche cucina separata, un bagno finestrato e una camera matrimoniale accogliente e silenziosa.

Al piano superiore la zona notte offre due camere aggiuntive, ideali come stanze per ragazzi, studio o camera ospiti, oltre a un secondo bagno.

L’immobile è completo di cantina, garage e posto auto privato interno all’abitazione, per garantire la massima comodità.

Posizione strategica: situata tra Reggio Emilia e Parma, in una zona residenziale tranquilla, servita e comoda a tutti i principali servizi e collegamenti.

Una soluzione ideale per chi cerca spazio, comfort e luminosità, in un contesto riservato ma vicino a tutto ciò che serve.

Contattaci per maggiori informazioni o per fissare una visita!

Mostra tutto

Nelle vicinanze

Trasporto pubblico Trasporto pubblico
Cadè - Inc. Via dei Quercioli
Cadè - Inc. Via dei Quercioli
1,7 Km
Roncocesi latteria
Roncocesi latteria
3,0 Km
Ricariche auto elettriche Ricariche auto elettriche
CAVRIAGO Lama | ENELX
1,6 Km
Nissan Gruppo Autotorino SpA | EnelX
1,9 Km
Scuole Scuole
Scuola primaria statale Vincenzo Ferrari
430 m
Scuola primaria statale Paola Valeriani
2,1 Km
Farmacia Farmacia
Farmacie Comunali Riunite
2,2 Km
Supermercati Supermercati
Conad Cella
780 m
Bar Bar
Bar sport
620 m
Bar
2,0 Km
Ristoranti Ristoranti
La Grande Mela
480 m
Ristorante Self Service Il Punto
1,6 Km
Pantagruel
2,1 Km
Mostra tutto

Caratteristiche

Rif.:
61138464
Piano:
2 di 2 (ultimo Piano)
Box:
1
Posti auto:
1
Terrazzi:
1
Camere da letto:
3
Mostra tutto
Prezzo Prezzo
€ 199.000
Rata mutuo Rata mutuo
€ 938 / mese
Spese annue Spese annue
€ 1.200
Proponi il tuo prezzoProponi il tuo prezzo

Classe Energetica

E
E
E
E
E
E
E
E
E
EP globale non rinnovabile:
371.26 kW h/m² anno
EP globale rinnovabile:
371.26 kW h/m² anno
EP invernale del fabbricato:
EP estiva del fabbricato:
Anno di costruzione:
2004
Riscaldamento:
Autonomo
Tipo impianto:
A radiatori
Tipo alimentazione:
Metano

Ti interessa visionare l'immobile?

Fissa un appuntamento  Fissa un appuntamento

Richiedi informazioni

Clicca su Leggi per aprire l'informativa
* Questi campi sono obbligatori

Calcola il tuo mutuo

Semplice e senza impegno
Anticipo

( % )
Mutuo

( % )

pochi semplici passi

inserisci i tuoi dati
Questionario completato
Grazie per aver richiesto un appuntamento senza impegno con un nostro Consulente del Credito e Assicurativo.

Hai inserito correttamente tutti i dati necessari e a breve riceverai una e-mail con un link da convalidare per inviare i tuoi dati.
Affiliato
Studio Pegaso Srl
Via Martiri della Bettola, 66/b 42123 Reggio Nell'Emilia (RE)

Il nostro staff


  • Benson Darko
    Affiliato

  • Fawzi Amin Fawzi Amin
    Collaboratore

  • Rossana Pellegrino
    Coordinatrice

  • Franco Vasapollo
    Collaboratore
Via Martiri della Bettola, 66/b 42123 Reggio Nell'Emilia (RE)
Zona: San pellegrino-Canalina-Baragalla-Villa Verde-Reggio sud
Mostra su mappa
Orari: dal lunedì al venerdì dalle 09.00 alle 13.00 e dalle 15.00 alle 20.00. Sabato dalle 09.00 alle 13.00
Affiliato
Studio Pegaso Srl
Via Martiri della Bettola, 66/b 42123 Reggio Nell'Emilia (RE)

2026 Tecnocasa Franchising S.p.A. - P. IVA 08365160152 - Via Monte Bianco 60/A 20089 Rozzano (MI). Ogni agenzia ha un proprio titolare ed è autonoma. Privacy policy | Policy utilizzo | Cookie policy