Trilocale in vendita

Reggio Nell'Emilia, Via Corso Garibaldi - Centro
€ 239.000
4 locali 4 locali
125 Mq 125 Mq
1 bagno 1 bagno

Trilocale in vendita

Reggio Nell'Emilia, Via Corso Garibaldi - Centro

Descrizione annuncio

CENTRO STORICO:Tecnocasa San Pellegrino è entusiasta di presentare un'opportunità davvero imperdibile e raffinata nel cuore di Reggio Emilia.

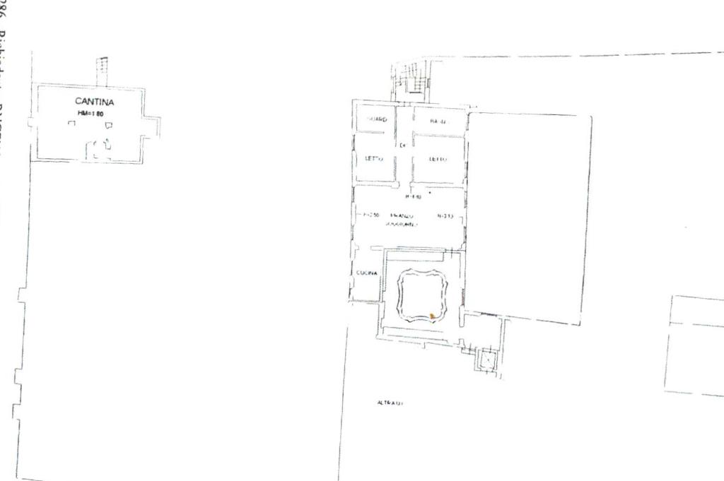
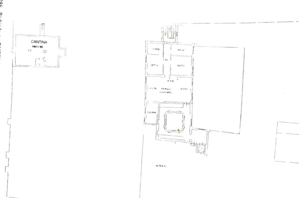
Questo affascinante appartamento di un edificio storico dell'800 posto al piano secondo con ascensore ed ingresso indipendente è una vera gemma per chi cerca comfort e stile.

L'immobile è caratterizzato da finiture di pregio sia internamente che esternamente, affreschi ottocenteschi ci accolgono all'ingreso del porticato accompagnandoci per le scale interne in marmo sino al soffito del piano secondo dove troviamo l'ingresso dell'appartamento.

Entrando ci accoglie un ampio e luminoso soggiorno carettirazato da un camino dell'epoca protagonista della zona giorno, e a quasi 4 metri di altezza affascinanti travi a vista dell'epoca ripristinati e rivisitati, una spazioza e moderna cucina completa la zona giorno.

Attraverso una porta in vetro satinato accediamo alla zona notte, dove troviamo 2 camere matrimoniali di cui una con cabina armadio, un bagno con vasca e porte scorrevoli aggiungono confort e praticità.

Il pavimento in cotto è presente in tutti gli ambienti dell'appartamento.

L'appartamento è stato completamento ristrutturato nel 2005 con una particolare attenzione ai dettagli mantendo lo stile originale dell'epoca.

Porta blindata e videocitofono aggiungono maggiore sicurezza alla proprieta'.

Completa la proprietà una spaziosa cantina con pozzo interno al piano seminterrato.

Questa proprietà rappresenta un'ottima opportunità per chi desidera vivere in una zona centrale e ben servita, senza rinunciare alla tranquillità e alla privacy e vivere in un contesto esclusivo di pregio e molto raffinato.

Non lasciarti sfuggire questa occasione unica! Contattaci per maggiori informazioni e per prenotare una visita.

Mostra tutto

Nelle vicinanze

Trasporto pubblico Trasporto pubblico
Reggio Emilia Santo Stefano
Reggio Emilia Santo Stefano
840 m
stazione di Reggio Emilia
stazione di Reggio Emilia
1,3 Km
Coop 1
Coop 1
110 m
Trasporto pubblico
120 m
Reggio Viale Piave
Reggio Viale Piave
910 m
Ricariche auto elettriche Ricariche auto elettriche
Eneldrive Piazza Vincenzo Gioberti
180 m
Reggio nell'Emilia Roversi | EnelX
320 m
Eneldrive Palazzo Vescovile
340 m
Eneldrive Nobili
540 m
Eneldrive Piazza dal Pòpol Giòst
700 m
Scuole Scuole
Scuola dell'infanzia e primaria paritaria "Figlie di Gesù"
240 m
Scuola secondaria di I grado statale "A. Manzoni
290 m
Istituto scolastico paritario "S. Vincenzo de' Paoli"
310 m
Scuola primaria statale "A. Negri"
310 m
Liceo scientifico statale "L. Spallanzani"
330 m
Farmacia Farmacia
Farmacia della Ghiara Farmacie comunali riunite
170 m
Farmacia Centrale
290 m
Farmacia Comunale Gattaglio
330 m
Farmacia Comunale della via Emilia
580 m
Farmacia
630 m
Ospedali Ospedali
Azienda ospedaliera Arcispedale Santa Maria Nuova
1,7 Km
Casa di cura policlinica Villa Verde
2,1 Km
Supermercati Supermercati
Coop UNO
110 m
Esselunga
350 m
Coop Porta Castello
570 m
Eurospar
810 m
Conad
830 m
Negozi Negozi
Ps Personal Shopper
190 m
Alchimista
280 m
Antica Bontà
330 m
Unity Store
350 m
H&M
350 m
Bar Bar
Canossa Bistrot
500 m
The Craftsman
550 m
Dimmelo tu
570 m
Cafè Fontanesi
570 m
Pellini
590 m
Ristoranti Ristoranti
Al Chiostro della Ghiara
160 m
Ramengo
180 m
Osteria Guerrina
190 m
Ristorante delle Notarie
220 m
Cucine Clandestine
230 m
Mostra tutto

Caratteristiche

Rif.:
61147610
Piano:
2 di 2 con ascensore (Piano alto)
Arredamento:
Parziale
Condizionamento:
Centralizzato
Ascensore:
Riscaldamento:
Centralizzato
Mostra tutto
Prezzo Prezzo
€ 239.000
Rata mutuo Rata mutuo
€ 1.109 / mese
Spese annue Spese annue
€ 5.000
Proponi il tuo prezzoProponi il tuo prezzo

Classe Energetica

G
G
G
G
G
G
G
G
G
EP globale non rinnovabile:
163.54 kW h/m² anno
EP globale rinnovabile:
163.54 kW h/m² anno
Anno di costruzione:
1800
Riscaldamento:
Centralizzato
Tipo impianto:
Ad aria
Tipo alimentazione:
Aria

Ti interessa visionare l'immobile?

Fissa un appuntamento  Fissa un appuntamento

Richiedi informazioni

Clicca su Leggi per aprire l'informativa
* Questi campi sono obbligatori

Calcola il tuo mutuo

Semplice e senza impegno
Anticipo

( % )
Mutuo

( % )

pochi semplici passi

inserisci i tuoi dati
Questionario completato
Grazie per aver richiesto un appuntamento senza impegno con un nostro Consulente del Credito e Assicurativo.

Hai inserito correttamente tutti i dati necessari e a breve riceverai una e-mail con un link da convalidare per inviare i tuoi dati.
Affiliato
Studio Pegaso Srl
Via Martiri della Bettola, 66/b 42123 Reggio Nell'Emilia (RE)

Il nostro staff


  • Benson Darko
    Affiliato

  • Fawzi Amin Fawzi Amin
    Collaboratore

  • Rossana Pellegrino
    Coordinatrice

  • Franco Vasapollo
    Collaboratore
Via Martiri della Bettola, 66/b 42123 Reggio Nell'Emilia (RE)
Zona: San pellegrino-Canalina-Baragalla-Villa Verde-Reggio sud
Mostra su mappa
Orari: dal lunedì al venerdì dalle 09.00 alle 13.00 e dalle 15.00 alle 20.00. Sabato dalle 09.00 alle 13.00
Affiliato
Studio Pegaso Srl
Via Martiri della Bettola, 66/b 42123 Reggio Nell'Emilia (RE)

2026 Tecnocasa Franchising S.p.A. - P. IVA 08365160152 - Via Monte Bianco 60/A 20089 Rozzano (MI). Ogni agenzia ha un proprio titolare ed è autonoma. Privacy policy | Policy utilizzo | Cookie policy