5 locali in vendita

Reggio Nell'Emilia, Via Petrarca - Belvedere
€ 210.000
5 locali 5 locali
123 Mq 123 Mq
2 bagni 2 bagni

5 locali in vendita

Reggio Nell'Emilia, Via Petrarca - Belvedere

Descrizione annuncio

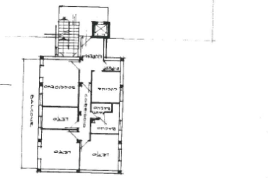
BELVEDERE: STUDIO PEGASO SRL propone in vendita un appartamento spazioso e funzionale, situato al terzo piano con ascensore.

L’ingresso si apre su un comodo e luminoso disimpegno grazie ad un'ampia vetrata illuminando l'ingresso che conduce alla cucina indipendente, funzionale e ben organizzata, e ad un ripostiglio molto comodo, un ampio soggiorno con balcone, una zona giorno davvero generosa dove poter vivere la quotidianità in totale comfort.

Proseguendo lungo il corridoio si raggiunge la zona notte, composta da due bagni, una camera 3/4 e due ampie camere matrimoniali, entrambe molto luminose e ben proporzionate. Una delle matrimoniali è inoltre collegata con il balcone del soggiorno, perfetto per avere uno sfogo esterno o per godersi un momento di relax.

Sono stati recentemente rifatti l’impianto fognario e la caldaia.
Completano la proprietà cantina e garage.

L’immobile ha un grandissimo potenziale con possibilità di ridistribuire tutti gli spazi interni in quanto tutte le pareti interne sono divisorie e non portanti, inoltre si trova in una delle zone più ricercate della città e comoda a tutti i servizi ed è presente un giardino condominiale.

Per avere maggiori informazioni o fissare la tua visita privata contattaci saremo lieti di potervi offrire il nostro servizio!

Mostra tutto

Nelle vicinanze

Trasporto pubblico Trasporto pubblico
stazione di Reggio Emilia
stazione di Reggio Emilia
3,0 Km
Rione Belvedere
Rione Belvedere
280 m
Villa Verde
Villa Verde
370 m
Ricariche auto elettriche Ricariche auto elettriche
Eneldrive Arcispedale S. Maria Nuova
1,2 Km
CF3000
1,8 Km
Eneldrive Centro Commerciale Le Querce
2,1 Km
Reggio nell'Emilia Roversi | EnelX
2,3 Km
Eneldrive Via Giorgione
2,5 Km
Scuole Scuole
Scuola d'infanzia e primaria statali "Don Milani"
550 m
Polo scolastico ex Artigianelli
760 m
Istituto comprensivo A. Ligabue
800 m
Scuola media C.A. Dalla Chiesa
800 m
Scuola primaria statale "S. Giovanni Bosco"
1,0 Km
Farmacia Farmacia
Farmacia San Pellegrino
540 m
Farmacia Ospedale H24
1,3 Km
Farmacia Coviolo
1,7 Km
Farmacia
2,0 Km
Farmacia Acquechiare
2,1 Km
Ospedali Ospedali
Casa di cura policlinica Villa Verde
400 m
Azienda ospedaliera Arcispedale Santa Maria Nuova
1,1 Km
Supermercati Supermercati
Coop Canalina
690 m
CONAD
990 m
SIGMA Canalina
1,1 Km
CONAD Reggio Sud
1,4 Km
Sigma
1,6 Km
Negozi Negozi
CONAD CITY
1,5 Km
ECU
1,9 Km
Panificio Reggiano
2,0 Km
Unity Store
2,3 Km
Un Altro Giro di Giostra
2,4 Km
Bar Bar
Bar
440 m
Bar Prestige
1,3 Km
Chocabek
1,6 Km
Palapa
1,6 Km
Baretto
2,0 Km
Ristoranti Ristoranti
Quantum
780 m
Buco Della Signora
1,5 Km
Pizzeria da Tommy
1,6 Km
Trattoria "A Canali"
1,6 Km
Grottamarina
1,6 Km
Mostra tutto

Caratteristiche

Rif.:
61151166
Piano:
3 di 4 con ascensore (Piano medio)
Box:
1
Posti auto:
1
Balconi:
1
Camere da letto:
3
Mostra tutto
Prezzo Prezzo
€ 210.000
Rata mutuo Rata mutuo
€ 975 / mese
Spese annue Spese annue
€ 2.000
Proponi il tuo prezzoProponi il tuo prezzo

Classe Energetica

G
G
G
G
G
G
G
G
G
EP globale non rinnovabile:
102.13 kW h/m² anno
EP globale rinnovabile:
102.13 kW h/m² anno
Anno di costruzione:
1971
Riscaldamento:
Autonomo
Tipo impianto:
A radiatori
Tipo alimentazione:
Metano

Ti interessa visionare l'immobile?

Fissa un appuntamento  Fissa un appuntamento

Richiedi informazioni

Clicca su Leggi per aprire l'informativa
* Questi campi sono obbligatori

Calcola il tuo mutuo

Semplice e senza impegno
Anticipo

( % )
Mutuo

( % )

pochi semplici passi

inserisci i tuoi dati
Questionario completato
Grazie per aver richiesto un appuntamento senza impegno con un nostro Consulente del Credito e Assicurativo.

Hai inserito correttamente tutti i dati necessari e a breve riceverai una e-mail con un link da convalidare per inviare i tuoi dati.
Affiliato
Studio Pegaso Srl
Via Martiri della Bettola, 66/b 42123 Reggio Nell'Emilia (RE)

Il nostro staff


  • Benson Darko
    Affiliato

  • Fawzi Amin Fawzi Amin
    Collaboratore

  • Rossana Pellegrino
    Coordinatrice

  • Franco Vasapollo
    Collaboratore
Via Martiri della Bettola, 66/b 42123 Reggio Nell'Emilia (RE)
Zona: San pellegrino-Canalina-Baragalla-Villa Verde-Reggio sud
Mostra su mappa
Orari: dal lunedì al venerdì dalle 09.00 alle 13.00 e dalle 15.00 alle 20.00. Sabato dalle 09.00 alle 13.00
Affiliato
Studio Pegaso Srl
Via Martiri della Bettola, 66/b 42123 Reggio Nell'Emilia (RE)

2026 Tecnocasa Franchising S.p.A. - P. IVA 08365160152 - Via Monte Bianco 60/A 20089 Rozzano (MI). Ogni agenzia ha un proprio titolare ed è autonoma. Privacy policy | Policy utilizzo | Cookie policy