5 locali in vendita

Reggio Nell'Emilia, Via Vittorio Fiorini - Canalina
€ 210.000
5 locali 5 locali
124 Mq 124 Mq
2 bagni 2 bagni

5 locali in vendita

Reggio Nell'Emilia, Via Vittorio Fiorini - Canalina

Descrizione annuncio

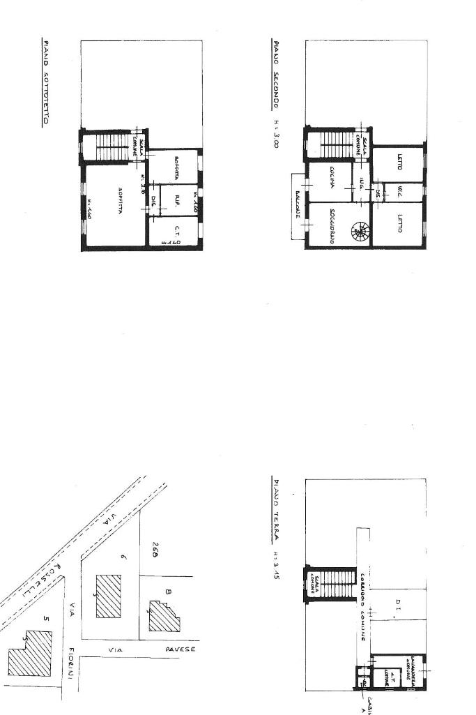
CANALINA: Studio Pegaso . propone in vendita, in esclusiva, un appartamento recentemente ristrutturato, disposto su due livelli e caratterizzato da ambienti ampi e ben organizzati.

Al primo piano troviamo una cucina separata, una luminosissima sala da pranzo, ideale per momenti conviviali, dalla quale si accede direttamente al balcone. La zona notte è composta da due spaziose camere matrimoniali e da un bagno finestrato.

Salendo al piano superiore, l’immobile offre un ulteriore spazio versatile, perfetto come secondo soggiorno o zona relax, oltre a un altro locale multifunzionale e a un secondo bagno, rendendo l’abitazione ideale anche per famiglie numerose o per chi necessita di ambienti aggiuntivi.

La proprietà è completata da un box auto di proprietà.

L’appartamento è dotato di riscaldamento autonomo con caldaia sostituita in occasione della ristrutturazione del 2019, che ha interessato l’immobile nel suo complesso, con rifacimento completo dell’impianto elettrico, sostituzione di infissi e pavimentazione.

È inoltre presente impianto di aria condizionata con funzione di pompa di calore, che garantisce comfort in ogni stagione. Il tetto è stato rifatto nel 2018, assicurando ulteriore sicurezza e tranquillità.

Soluzione pronta da abitare, ideale per chi cerca spazi generosi, funzionalità e tranquillità.

Mostra tutto

Nelle vicinanze

Trasporto pubblico Trasporto pubblico
Reggio Emilia Santo Stefano
Reggio Emilia Santo Stefano
1,8 Km
stazione di Reggio Emilia
stazione di Reggio Emilia
2,2 Km
Incrocio Via Compagnoni
Incrocio Via Compagnoni
420 m
Incrocio via Rossena
Incrocio via Rossena
420 m
Reggio all’Angelo
Reggio all’Angelo
1,7 Km
Ricariche auto elettriche Ricariche auto elettriche
Eneldrive Centro Commerciale Le Querce
820 m
Eneldrive Arcispedale S. Maria Nuova
1,0 Km
Reggio nell'Emilia Roversi | EnelX
1,1 Km
Eneldrive Piazza Vincenzo Gioberti
1,3 Km
Eneldrive Palazzo Vescovile
1,4 Km
Scuole Scuole
Scuola primaria statale "S. Giovanni Bosco"
460 m
Lingua Point
630 m
Nido d'infanzia "G. Rodari"
670 m
Scuola media C.A. Dalla Chiesa
700 m
Istituto comprensivo "M. E. Lepido"
710 m
Farmacia Farmacia
Farmacia Ospedale H24
1,0 Km
Farmacia
1,0 Km
Farmacia Comunale Gattaglio
1,1 Km
Farmacia Coviolo
1,1 Km
Farmacia San Pellegrino
1,3 Km
Ospedali Ospedali
Casa di cura policlinica Villa Verde
1,1 Km
Azienda ospedaliera Arcispedale Santa Maria Nuova
1,2 Km
Supermercati Supermercati
SIGMA Canalina
500 m
Conad
680 m
CONAD SUPERSTORE Le Querce
740 m
Coop Canalina
880 m
Coop Vivaldi
970 m
Negozi Negozi
Unity Store
1,2 Km
Alchimista
1,3 Km
Antica Bontà
1,3 Km
Un Altro Giro di Giostra
1,3 Km
Ps Personal Shopper
1,3 Km
Bar Bar
Bar Glennys
880 m
Baretto
1,0 Km
Dimmelo tu
1,2 Km
Canossa Bistrot
1,2 Km
Cafè Fontanesi
1,2 Km
Ristoranti Ristoranti
La Pignatta
850 m
Il Girasole
870 m
Interno TRE
1,1 Km
Oasi
1,1 Km
Giardino
1,1 Km
Mostra tutto

Caratteristiche

Rif.:
61155117
Piano:
2 di 2
Box:
1
Posti auto:
1
Balconi:
1
Camere da letto:
3
Mostra tutto
Prezzo Prezzo
€ 210.000
Rata mutuo Rata mutuo
€ 1.002 / mese
Spese annue Spese annue
€ 0
Proponi il tuo prezzoProponi il tuo prezzo
Immobile valutato con T·Valuta

Classe Energetica

F
F
F
F
F
F
F
F
F
EP globale non rinnovabile:
180.81 kW h/m² anno
EP globale rinnovabile:
180.81 kW h/m² anno
EP invernale del fabbricato:
EP estiva del fabbricato:
Anno di costruzione:
1970
Riscaldamento:
Autonomo
Tipo impianto:
A radiatori
Tipo alimentazione:
Metano

Ti interessa visionare l'immobile?

Fissa un appuntamento  Fissa un appuntamento

Richiedi informazioni

Clicca su Leggi per aprire l'informativa
* Questi campi sono obbligatori

Calcola il tuo mutuo

Semplice e senza impegno
Anticipo

( % )
Mutuo

( % )

pochi semplici passi

inserisci i tuoi dati
Questionario completato
Grazie per aver richiesto un appuntamento senza impegno con un nostro Consulente del Credito e Assicurativo.

Hai inserito correttamente tutti i dati necessari e a breve riceverai una e-mail con un link da convalidare per inviare i tuoi dati.
Affiliato
Studio Pegaso Srl
Via Martiri della Bettola, 66/b 42123 Reggio Nell'Emilia (RE)

Il nostro staff


  • Benson Darko
    Affiliato

  • Fawzi Amin Fawzi Amin
    Collaboratore

  • Rossana Pellegrino
    Coordinatrice

  • Franco Vasapollo
    Collaboratore
Via Martiri della Bettola, 66/b 42123 Reggio Nell'Emilia (RE)
Zona: San pellegrino-Canalina-Baragalla-Villa Verde-Reggio sud
Mostra su mappa
Orari: dal lunedì al venerdì dalle 09.00 alle 13.00 e dalle 15.00 alle 20.00. Sabato dalle 09.00 alle 13.00
Affiliato
Studio Pegaso Srl
Via Martiri della Bettola, 66/b 42123 Reggio Nell'Emilia (RE)

2026 Tecnocasa Franchising S.p.A. - P. IVA 08365160152 - Via Monte Bianco 60/A 20089 Rozzano (MI). Ogni agenzia ha un proprio titolare ed è autonoma. Privacy policy | Policy utilizzo | Cookie policy