5 locali in vendita

Reggio Nell'Emilia, Via Martiri della Bettola - Baragalla
€ 315.000
5 locali 5 locali
137 Mq 137 Mq
2 bagni 2 bagni

5 locali in vendita

Reggio Nell'Emilia, Via Martiri della Bettola - Baragalla

Descrizione annuncio

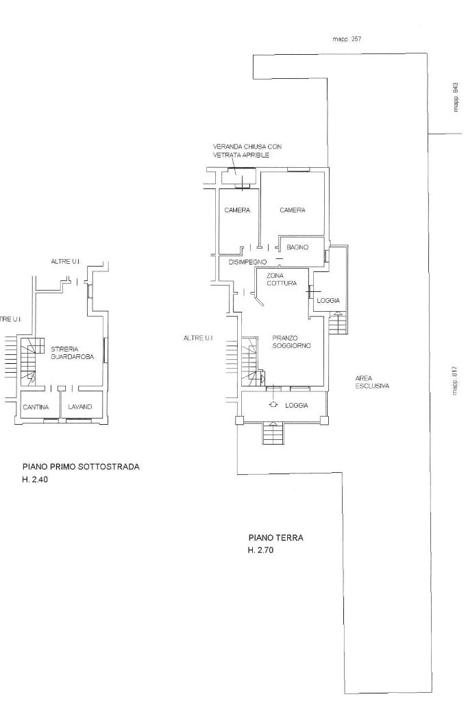
BARAGALLA: Studio Pegaso SRL propone in vendita appartamento con giardino di recente costruzione, completamente ristrutturato nel 2020, situato al piano terra con ingresso indipendente.

L’immobile è caratterizzato da ampio giardino privato attrezzato con barbecue e gazebo , ideale per momenti di relax all’aperto. Inoltre troviamo un posto auto coperto di proprietà.

Le finiture moderne e curate nei dettagli valorizzano ogni ambiente, mentre il riscaldamento autonomo garantisce comfort e gestione ottimale dei consumi.

Nella zona giorno al piano terra troviamo una moderna cucina open space , un disimpegno con armadio a muro che porta nella zona notte dove avremo una matrimoniale, una singola e un bagno ristrutturato;

Al piano seminterrato troviamo locale cantina, bagno di servizio e spaziosa taverna, con accesso diretto al garage dotato di apertura automatizzata, soluzione pratica e funzionale.

Disponibile da Aprile 2026.

Per maggiori informazioni vieni a trovarci nell'ufficio Tecnocasa in via Martiri Della Bettola 66!

Mostra tutto

Nelle vicinanze

Trasporto pubblico Trasporto pubblico
Biroccio
Biroccio
130 m
Baragalla
Baragalla
240 m
Ricariche auto elettriche Ricariche auto elettriche
CF3000
370 m
Eneldrive Arcispedale S. Maria Nuova
2,7 Km
Eneldrive Centro Commerciale Le Querce
2,8 Km
Scuole Scuole
ENAIP
410 m
Polo scolastico ex Artigianelli
980 m
ITS Tricolore
1,3 Km
Scuola primaria A. Tassoni
1,4 Km
Scuole medie inferiori
1,4 Km
Farmacia Farmacia
Farmacia Coviolo
1,9 Km
Farmacia San Pellegrino
2,0 Km
Farmacia Ospedale H24
2,7 Km
Farmacia comunale Roncina
2,8 Km
Ospedali Ospedali
Casa di cura policlinica Villa Verde
1,7 Km
Azienda ospedaliera Arcispedale Santa Maria Nuova
2,6 Km
Supermercati Supermercati
Ipercoop Baragalla
420 m
CONAD
630 m
Coop Canalina
1,6 Km
Sigma
1,7 Km
SIGMA Canalina
2,0 Km
Negozi Negozi
CONAD CITY
1,1 Km
Forno Rivalta
1,5 Km
Bar Bar
Bar
40 m
Palapa
420 m
Bar Prestige
2,7 Km
Ristoranti Ristoranti
Pizzikotto
450 m
Quantum
820 m
Trattoria "A Canali"
1,3 Km
Ristorante Pizzeria Piccolo Paradiso
1,8 Km
Osteria Doppio Litro
2,2 Km
Mostra tutto

Caratteristiche

Rif.:
61181202
Piano:
Basso di 3
Totale piani:
3
Box:
1
Posti auto:
1
Terrazzi:
1
Mostra tutto
Prezzo Prezzo
€ 315.000
Rata mutuo Rata mutuo
€ 1.462 / mese
Spese annue Spese annue
€ 200
Proponi il tuo prezzoProponi il tuo prezzo

Classe Energetica

E
E
E
E
E
E
E
E
E
EP globale non rinnovabile:
219.57 kW h/m² anno
EP globale rinnovabile:
256.87 kW h/m² anno
EP invernale del fabbricato:
EP estiva del fabbricato:
Anno di costruzione:
2000
Riscaldamento:
Autonomo
Tipo impianto:
A radiatori
Tipo alimentazione:
Metano

Ti interessa visionare l'immobile?

Fissa un appuntamento  Fissa un appuntamento

Richiedi informazioni

Clicca su Leggi per aprire l'informativa
* Questi campi sono obbligatori

Calcola il tuo mutuo

Semplice e senza impegno
Anticipo

( % )
Mutuo

( % )

pochi semplici passi

inserisci i tuoi dati
Questionario completato
Grazie per aver richiesto un appuntamento senza impegno con un nostro Consulente del Credito e Assicurativo.

Hai inserito correttamente tutti i dati necessari e a breve riceverai una e-mail con un link da convalidare per inviare i tuoi dati.
Affiliato
Studio Pegaso Srl
Via Martiri della Bettola, 66/b 42123 Reggio Nell'Emilia (RE)

Il nostro staff


  • Benson Darko
    Affiliato

  • Fawzi Amin Fawzi Amin
    Collaboratore

  • Rossana Pellegrino
    Coordinatrice

  • Franco Vasapollo
    Collaboratore
Via Martiri della Bettola, 66/b 42123 Reggio Nell'Emilia (RE)
Zona: San pellegrino-Canalina-Baragalla-Villa Verde-Reggio sud
Mostra su mappa
Orari: dal lunedì al venerdì dalle 09.00 alle 13.00 e dalle 15.00 alle 20.00. Sabato dalle 09.00 alle 13.00
Affiliato
Studio Pegaso Srl
Via Martiri della Bettola, 66/b 42123 Reggio Nell'Emilia (RE)

2026 Tecnocasa Franchising S.p.A. - P. IVA 08365160152 - Via Monte Bianco 60/A 20089 Rozzano (MI). Ogni agenzia ha un proprio titolare ed è autonoma. Privacy policy | Policy utilizzo | Cookie policy