Quadrilocale in vendita

Reggio Nell'Emilia, Via Ovidio - Cadè
€ 239.000
4 locali 4 locali
127 Mq 127 Mq
2 bagni 2 bagni

Quadrilocale in vendita

Reggio Nell'Emilia, Via Ovidio - Cadè

Descrizione annuncio

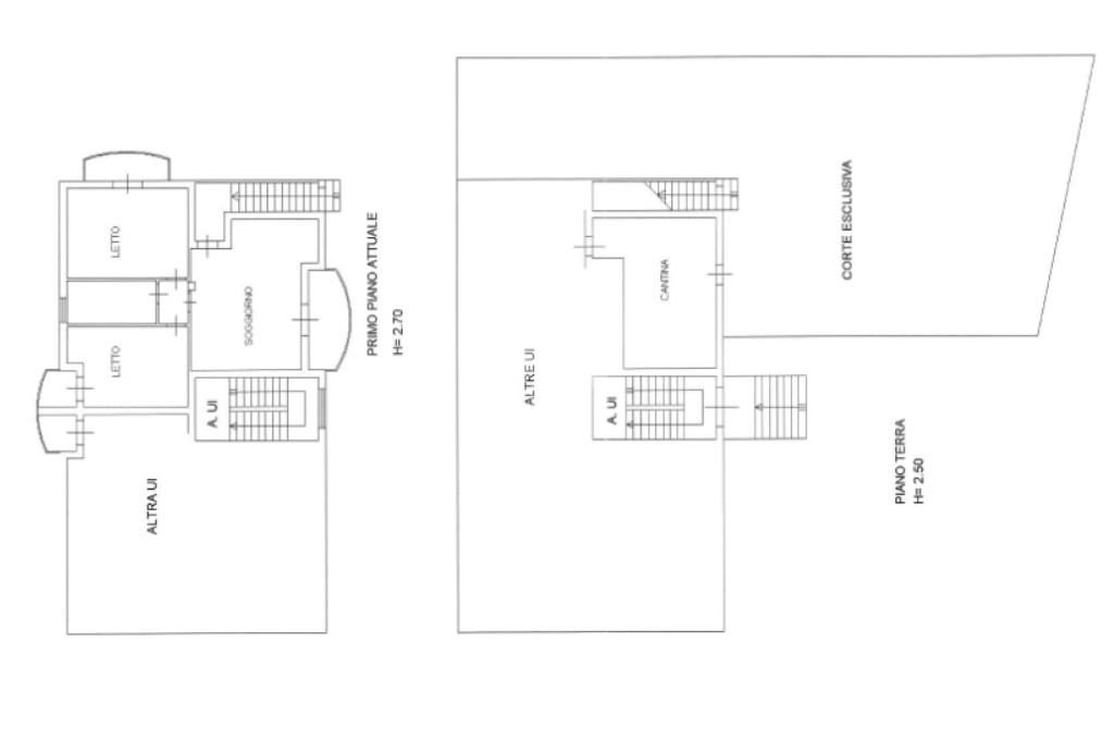
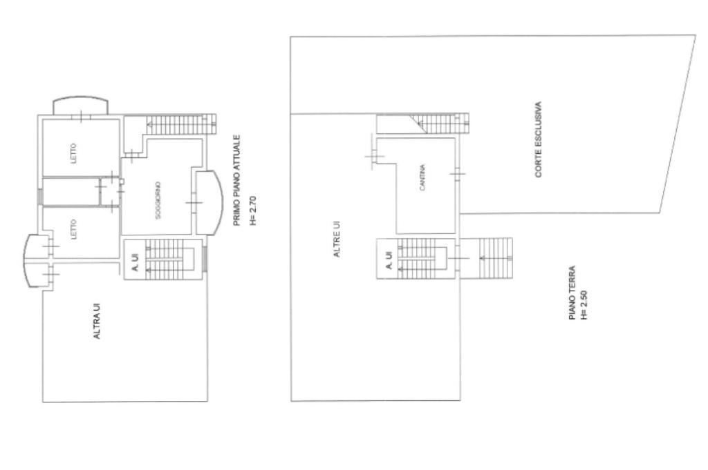
CADE’ – Studio Pegaso propone in vendita una splendida maisonette con ingresso indipendente, giardino privato e garage doppio, con la possibilità di creare due unità completamente indipendenti, il tutto esente da spese condominiali. L’immobile è inserito in un contesto tranquillo e residenziale, situato in strada chiusa, ideale per chi desidera privacy e serenità.

L’appartamento è disposto su due livelli. Si accede tramite un ingresso indipendente al giardino privato, uno spazio verde riservato che accoglie e regala una piacevole sensazione di casa fin dal primo passo.

Dal giardino si può accedere a un locale multiuso posto al piano terra, dove è possibile ricavare un mini appartamento con accesso autonomo, completo di bagno e attacchi per la cucina: una soluzione perfetta per un familiare, per uno studio professionale o per chi desidera uno spazio da mettere a reddito.

Tramite una scala esterna privata si accede all’appartamento principale, posto al primo piano. Entrando troviamo un ampio e luminoso soggiorno con cucina a vista, dotato di terrazzino che affaccia sul giardino privato, creando una piacevole continuità tra interno ed esterno. Un disimpegno, caratterizzato da una porta a libro, separa con eleganza la zona giorno dalla zona notte, composta da due camere matrimoniali, entrambe con un balcone a servizio, e da un bagno.

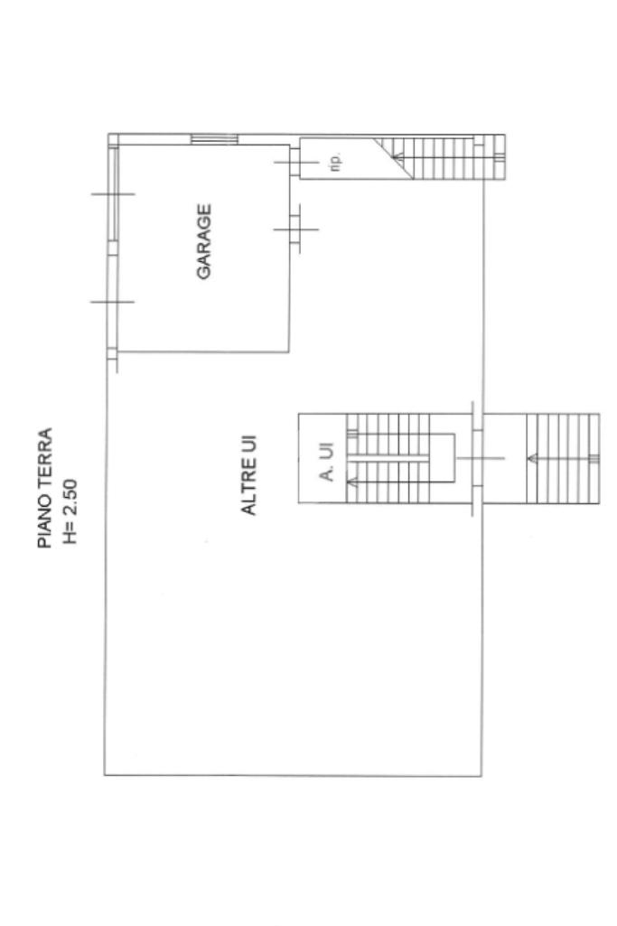
Sempre al piano terra, di pertinenza dell’immobile, troviamo un garage doppio in larghezza con due basculanti e un posto auto all’interno del cortile condominiale.

Se non vuoi lasciarti sfuggire questa occasione e desideri ricevere maggiori informazioni o fissare la tua visita privata, contattaci: saremo lieti di offrirti il nostro servizio e accompagnarti alla scoperta di quella che potrebbe diventare la tua nuova casa.

Mostra tutto

Nelle vicinanze

Trasporto pubblico Trasporto pubblico
Cadè - Inc. Via dei Quercioli
Cadè - Inc. Via dei Quercioli
840 m
Trasporto pubblico
1,8 Km
Scuole Scuole
Scuola dell'infanzia statale Bruno Ciari
450 m
Scuola primaria statale Paola Valeriani
520 m
Scuole
2,0 Km
Scuola primaria statale Vincenzo Ferrari
3,0 Km
Farmacia Farmacia
Farmacie Comunali Riunite
410 m
Farmacia
2,1 Km
Supermercati Supermercati
Supermercati
3,0 Km
Bar Bar
Bar
1,8 Km
Mostra tutto

Caratteristiche

Rif.:
61182441
Piano:
1 di 3 (Piano basso)
Box:
2
Posti auto:
1
Balconi:
3
Terrazzi:
3
Mostra tutto
Prezzo Prezzo
€ 239.000
Rata mutuo Rata mutuo
€ 1.140 / mese
Spese annue Spese annue
€ 80
Proponi il tuo prezzoProponi il tuo prezzo
Immobile valutato con T·Valuta

Classe Energetica

Questo immobile è esente da classe energetica
Anno di costruzione:
1998
Riscaldamento:
Autonomo
Tipo impianto:
A radiatori
Tipo alimentazione:
Metano

Ti interessa visionare l'immobile?

Fissa un appuntamento  Fissa un appuntamento

Richiedi informazioni

Clicca su Leggi per aprire l'informativa
* Questi campi sono obbligatori

Calcola il tuo mutuo

Semplice e senza impegno
Anticipo

( % )
Mutuo

( % )

pochi semplici passi

inserisci i tuoi dati
Questionario completato
Grazie per aver richiesto un appuntamento senza impegno con un nostro Consulente del Credito e Assicurativo.

Hai inserito correttamente tutti i dati necessari e a breve riceverai una e-mail con un link da convalidare per inviare i tuoi dati.
Affiliato
Studio Pegaso Srl
Via Martiri della Bettola, 66/b 42123 Reggio Nell'Emilia (RE)

Il nostro staff


  • Benson Darko
    Affiliato

  • Fawzi Amin Fawzi Amin
    Collaboratore

  • Rossana Pellegrino
    Coordinatrice

  • Franco Vasapollo
    Collaboratore
Via Martiri della Bettola, 66/b 42123 Reggio Nell'Emilia (RE)
Zona: San pellegrino-Canalina-Baragalla-Villa Verde-Reggio sud
Mostra su mappa
Orari: dal lunedì al venerdì dalle 09.00 alle 13.00 e dalle 15.00 alle 20.00. Sabato dalle 09.00 alle 13.00
Affiliato
Studio Pegaso Srl
Via Martiri della Bettola, 66/b 42123 Reggio Nell'Emilia (RE)

2026 Tecnocasa Franchising S.p.A. - P. IVA 08365160152 - Via Monte Bianco 60/A 20089 Rozzano (MI). Ogni agenzia ha un proprio titolare ed è autonoma. Privacy policy | Policy utilizzo | Cookie policy